小成都寶餐飲裝修工程
| 項目名稱 | 小成都寶餐飲裝修工程 | 行業屬性 | 酒店/餐飲/會所 |
| 項目地址 | 南京大道75號附近 | 項目造價 | 15.9萬 |
| 主關鍵詞 |
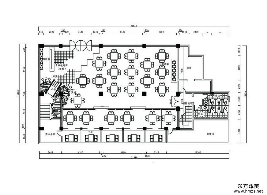
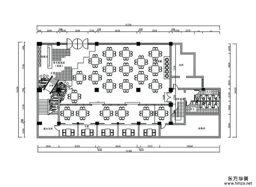
▄原建筑結構分析: 本項目為小成都寶店面裝修設計方案,面積202平米,設計師在設計時,采用地后現代風格,在組合設計上與空間完美搭配,充分利用每一處空間,且不顯局促、不失大氣,解放了開放式自由空間,裝飾與應用于一體。
▄設計需求: 設計師采用后現代風格,在組合設計上與空間完美搭配,充分利用每一處空間,且不顯局促、不失大氣,解放了開放式自由空間,裝飾與應用于一體。
▄設計風格定位: 為了體現后現代設計風格,整體多采用較為現代餐飲的裝飾,充分利用色彩和空間的組合,帶來一種不一樣的空間感。


北京鑄誠大廈辦公裝修工程
北京銀河SOHO辦公裝修工程
301醫院裝修工程
