港隆廣場餐飲裝修工程
| 項目名稱 | 港隆廣場餐飲裝修工程 | 行業屬性 | 酒店/餐飲/會所 |
| 項目地址 | 北京市東城區體育館路 | 項目造價 | 18.1萬 |
| 主關鍵詞 |
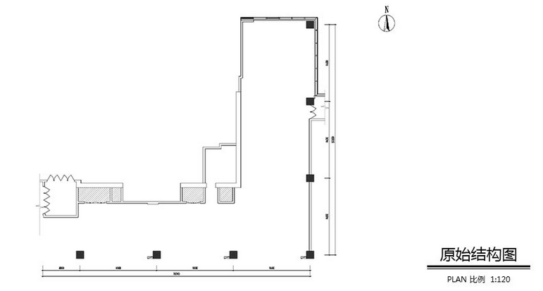
▄原建筑結構分析: 根據項目原先的結構進行改造
▄設計需求: 設計師采用了個性前衛的裝修設計風格,風格前衛,經久不過時,同時為了成本控制,材質的替換和新材料的運用也是本案裝修設計的一個特點。
▄設計風格定位: 由于之前裝修顏色過重太過沉悶,改造目的讓整個空間布局更合理,色調更柔和,對比更強。因此大廳位置保留原地面深顏色的地磚,通過簡單的吧臺直線造型和用材,過度和緩和下深色地磚帶來的壓迫感,直至墻面用暖色壁紙和冷暖光的搭配,來烘托整個空間的氛圍。


北京鑄誠大廈辦公裝修工程
北京銀河SOHO辦公裝修工程
301醫院裝修工程
